📍香港·高层海景公寓 | 📐现代极简×日式侘寂 | 🎨浅木·暖灰·哑光黑
这套案例简直是**"Less is More"**的教科书级演绎!设计师用**现代极简主义**为骨架,融入**日式侘寂美学**的温润质感,在钢筋水泥的都市森林里打造了一处"呼吸感"十足的避难所。
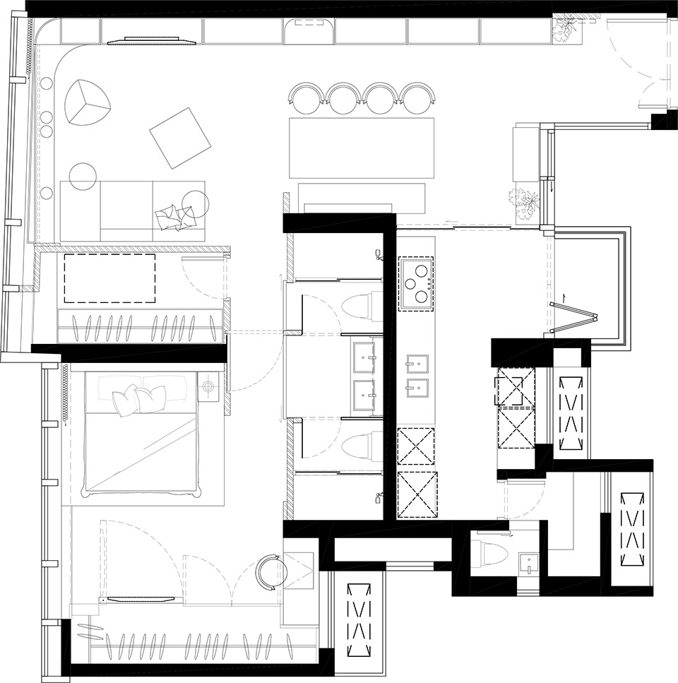
核心设计语言:
🪵 去繁从简 —— 全屋隐形门设计,墙面与柜体一体化,视觉上零杂乱
🌊 悬浮感 —— 地台床、悬空柜、挑高收纳,让家具"飘"起来,空间瞬间放大术!
🎋 东方留白 —— 不填满的收纳柜、留白的艺术墙面,给生活留出想象空间



💡 设计师Tips: 浅木色选带**山纹**的比直纹更温暖,灰色要选**暖灰**(带一点点黄调),冷灰会显得冰冷哦!



神仙操作: 天花板做弧形跌级+隐藏灯带,柔化空间棱角,晚上开灯像给天花板加了一层柔光滤镜!
收纳王炸: 整面墙悬浮储物柜,底部留空+格栅设计,拒绝压抑感。黑色金属支架既是支撑也是装饰线条。
飘窗改造: 弧形卡座延伸至电视墙,变成连续的地台座位,朋友来了能围坐聊天,海景+软垫=最佳阅读角📖



地台床+灯带: 床垫直接落在木质地台上,底部嵌入暖光灯带,夜间起床不用摸黑,还能营造"漂浮"的梦幻感。
步入式衣帽间: 旋转门设计省空间,内部全开放式挂衣区+抽屉,告别叠衣服烦恼!
材质碰撞: 竖条纹理石材(类似洞石)+ 圆形木质门把手,粗糙与温润的 tactile contrast(触觉对比)绝了👌



对称美学: 双马桶+双淋浴间设计(适合家庭成员多或追求极致效率),中间洗手台作为视觉中心。
水磨石回归: 墙面采用细腻骨料的水磨石,比瓷砖更有质感,搭配哑光黑色五金,高级感拉满。
镜柜心机: 内嵌灯带+木质包边,化妆时光线均匀,还能收纳瓶瓶罐罐。

必买List:
1. 模块化沙发 —— 图片中那个像云朵一样的米色布艺沙发,可以拆分成单个坐垫,灵活组合。
2. 细腿/悬浮感家具 —— 选择腿部纤细的茶几、床头柜,或者像案例中一样直接做地台,让地板视觉上连贯延伸。
3. 圆弧元素单品 —— 呼应天花板的弧形,选几个圆形坐垫、球形灯具、圆弧靠背椅,柔化极简风的硬朗感。
避雷❌: 避免厚重雕花的古典家具,拒绝高饱和亮色(除非是小面积点缀),别用亮面材质(烤漆、抛光砖),哑光才显贵!
这套案例没有主灯(或只有少量射灯),全靠**多层次照明**:
基础照明: 天花隐藏灯带(2700K暖白光)
氛围照明: 地台底部、柜体内部的间接光源
重点照明: 轨道射灯打亮装饰画和餐桌
功能照明: 床头壁灯、镜前灯
✨ 氛围感密码: 所有光源色温统一在2700-3000K,避免冷白光!想拍照好看,一定要加**氛围灯带**,它能让普通的木饰面瞬间变成"发光体"!
适合人群:
✅ 喜欢整洁、讨厌打扫的懒癌患者(无死角设计)
✅ 小户型但想要大空间感的都市白领
✅ 收集癖少、崇尚断舍离的极简主义者
硬装重点:
全屋定制柜要做到顶,把手选隐形或反弹器
地板通铺,不做过门石,视觉延伸感Max
墙面用艺术涂料或微水泥,比乳胶漆有质感,比墙纸耐用
软装口诀:
"七分素,三分跳" —— 70%大地色系基础款,30%设计款(一把造型独特的单椅、一盏纸艺灯、一个陶土花瓶)。
#极简主义 #现代简约 #原木风 #日式装修 #小户型改造 #地台床 #隐形门 #无主灯设计 #装修灵感库 #家居美学 #香港室内设计 #海景房装修 #断舍离生活 #高级感装修 #装修抄作业
💬 互动话题: 你会选择这种"空无一物"的极简风,还是温馨满满的奶油风?评论区聊聊你的 dream house!👇